久久夜夜夜I中文字幕免费在线看I91传媒激情理伦片I色激情五月I玖玖玖在线观看I嫩小bbbb摸bbb摸bbbI91色影院I免费www视频

Previous Next

超深井提升容器的選型設計與應用(下)(圖文)

時間:2024-05-30 09:59:54  點擊數:


3 成果分析

      (1)箕斗采用雙卸載系統,井筒布置了2個卸載站,1號卸載站在 1 810 m 水平卸載混合礦,采用移動直軌卸載;2號卸載站在 2 400 m 水平卸載氧化礦和廢石,采用固定曲軌卸載。箕斗采用 3 點裝礦,1號裝礦站在 1 554 m,2號裝礦站在 1 244 m,3號裝礦站在 894 m。

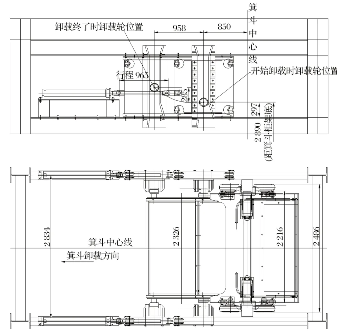
      (2)這種2個卸礦點應用在同一箕斗的卸礦方式在我國尚屬shou 次,會澤礦3號豎井是目前wei 一在用的雙卸載點礦井。一般的礦井一個井筒采用一個卸礦點,多個水平的多點卸礦一般要打多個井筒。為了多點卸礦功能的順利實現,移動直軌到位精度偏差不能超過±5 mm,并且應滿足鋼絲繩正常的彈性變形伸縮量的卸載要求。多點卸礦為礦山開采節約了大量成本,移動直軌卸載裝置如圖2所示。
 

圖2 移動直軌卸載裝置
 

      移動直軌安裝在井筒套架梁上,采用滾輪支撐,滾輪設置潤滑油嘴,直軌由液壓缸驅動。在1號卸載站不工作時,移動直軌與箕斗間距不小于《煤礦安全規程》中要求的150 mm,保證箕斗全速通過。直軌、箕斗均需配置打開到位和關閉到位的檢測開關,檢測開關等級不低于IP67 級,卸載直軌滿足驅動箕斗能準確無誤卸載與關閉箕斗,無二次動作發生。卸載控制系統設置本地操作臺,滿足手動、自動、遠程控制和運行參數監控及顯示,并且要求卸載控制系統能夠準確地與主提升機接口進行數據傳輸,能形成全自動閉鎖控制。

4 結語

      未來深部資源開采技術是我國礦山開采的方向,大型超深井提升容器及雙卸載設備在會澤礦3號井的成功應用,為我國深井開采用提升容器的設計與選型提供借鑒經驗,雙卸載設備的開發應用提高了礦山開采的經濟效益。

 

 
      鶴壁市雙民礦山機械有限公司是以制造大型礦山提升設備,電器成套自動化控制系統為主的科研型高科技企業,是國家礦山專用設備及配件產品定點生產單位。主要生產、銷售JTK、JTP、JTPB、JK、JKB、JKM、JKMD型系列礦用提升絞車、礦井提升機、多繩摩擦式提升機、JZ型鑿井絞車及礦山各種成套設備及配件。